Trang thông tin tổng hợp
  • Mới nhất Xem nhiều
  • Hotline: 1900 9011
Trang thông tin tổng hợp
  • HOME
  • HI TECH
  • Ăn
  • Đời Sống Và Văn Hóa
  • Điểm Hẹn
  • EVA
  • Tử Vi
  • Ảnh
  • XE++
HOME HI TECH Ăn Đời Sống Và Văn Hóa Điểm Hẹn EVA Tử Vi Ảnh XE++
  • Tải Capcut miễn phí để tạo video chuyên nghiệp
  • Tải ứng dụng từ Google Play Store nhanh chóng và dễ dàng
  • Cách tải FIFA nhanh chóng và dễ dàng cho game thủ
  • Hướng dẫn tải video trên web hiệu quả và nhanh chóng
  • Hướng dẫn tải Zoom cho MacBook dễ dàng và nhanh chóng
  • Tải lịch vạn niên để tra cứu ngày tháng dễ dàng
Thứ 6, ngày 16 tháng 8, 2019, 8:36:21 Chiều
  1. Trang chủ
  2. HI TECH

Khám Phá Chung Cư Phú Mỹ Cao Cấp Tại Quận 7

avatar
Tra Nam
03:15 04/01/2025
Chung cư Phú Mỹ, Quận 7, TP Hồ Chí Minh

Giới thiệu dự án Chung cư Phú Mỹ

Chung cư Phú Mỹ, Quận 7, TP Hồ Chí Minh

Tổng quan

Chung cư Phú Mỹ, một dự án cao cấp do Công ty Vạn Phát Hưng đầu tư, tọa lạc tại phường Phú Mỹ, quận 7, TP Hồ Chí Minh. Dự án sở hữu tổng diện tích lên tới 12.915 m² với quy mô gồm 5 block nhà và 482 căn hộ. Chúng tôi, công ty Kim Cương Xanh, luôn tự hào được đồng hành cung cấp các dịch vụ tiện ích hoàn hảo tại đây. Chung cư Phú Mỹ, Quận 7, TP Hồ Chí Minh

Thiết kế và concept

Chung cư Phú Mỹ được thiết kế theo tiêu chuẩn Singapore, đem đến vẻ đẹp hiện đại nhưng vẫn hòa quyện với văn hóa Á Đông. Ý tưởng thiết kế độc đáo, lấy cảm hứng từ câu tục ngữ “Con hơn cha là nhà có phúc”, đã thể hiện tài tình qua việc phân chia các khối nhà. Hai khối nhà cao 20 tầng tượng trưng cho cha mẹ, còn ba khối trung tâm cao 25 tầng mang hình ảnh về những người con thành đạt. Chung cư Phú Mỹ, Quận 7, TP Hồ Chí Minh

Không gian sống lý tưởng

Tại chung cư Phú Mỹ, không gian sống không chỉ tập trung ở các căn hộ mà còn được mở rộng với cảnh quan tự nhiên tuyệt đẹp. Với 74% diện tích dành cho cảnh quan, dự án giống như một khu nghỉ dưỡng 5 sao, nơi cư dân có thể tận hưởng không gian sống thoải mái và gần gũi với thiên nhiên, giúp họ giải tỏa stress sau những giờ làm việc căng thẳng. Chung cư Phú Mỹ, Quận 7, TP Hồ Chí Minh

Pháp lý

Chung cư Phú Mỹ, Quận 7, TP Hồ Chí Minh

Hợp đồng mua bán

Người mua có thể ký kết hợp đồng mua bán trực tiếp với chủ đầu tư, đảm bảo sự minh bạch và an toàn cho các giao dịch. Điều này không chỉ giúp tăng cường lòng tin mà còn tạo điều kiện thuận lợi cho các thủ tục pháp lý liên quan đến việc sở hữu căn hộ. Chung cư Phú Mỹ, Quận 7, TP Hồ Chí Minh

Tiện ích

Chung cư Phú Mỹ, Quận 7, TP Hồ Chí Minh

Cơ sở hạ tầng và dịch vụ

Chung cư Phú Mỹ được trang bị đầy đủ các dịch vụ tiện ích hiện đại, bao gồm:
  • Sân vườn rộng lớn: Khu vực lý tưởng cho gia đình có trẻ nhỏ và người yêu thiên nhiên.
  • Khu thương mại: Đáp ứng nhu cầu mua sắm hàng ngày của cư dân.
  • Phòng sinh hoạt cộng đồng: Không gian lý tưởng để cư dân giao lưu, kết nối với nhau.
  • Phòng gym và hồ bơi: Đáp ứng nhu cầu rèn luyện sức khỏe cho cư dân.
  • Khu nướng ngoài trời: Địa điểm tuyệt vời cho các buổi tiệc BBQ cùng gia đình bạn bè.
Chung cư Phú Mỹ, Quận 7, TP Hồ Chí Minh

Hồ bơi cao cấp

Hồ bơi lớn rộng 500m³ cùng hồ nhỏ 50m³ hứa hẹn mang đến những phút giây thư giãn tuyệt vời cho cư dân. Khu vực spa gần đó cũng được bố trí hợp lý để cư dân có thể nghỉ ngơi và lấy lại năng lượng. Chung cư Phú Mỹ, Quận 7, TP Hồ Chí Minh

Khu vui chơi và thể thao

Chung cư Phú Mỹ cũng không quên đầu tư cho các khu vui chơi trẻ em. Các trò chơi như xích đu, cầu trượt và các hạng mục thể thao như sân cầu lông là những điểm hấp dẫn dành cho trẻ nhỏ và người lớn. Đặc biệt, đây là một không gian lý tưởng để trẻ em vận động, phát triển thể lực và trí thông minh. Chung cư Phú Mỹ, Quận 7, TP Hồ Chí Minh

Dịch vụ chăm sóc khách hàng

Với đội ngũ nhân viên chuyên nghiệp, Kim Cương Xanh cam kết đem đến sự hài lòng cao nhất cho cư dân thông qua các dịch vụ như:
  • Dịch vụ vệ sinh: Đảm bảo mọi góc nhỏ trong khu vực sống luôn sạch đẹp.
  • Dịch vụ cây xanh: Đem lại không gian xanh mát, giúp cải thiện chất lượng không khí.
  • Dịch vụ bảo vệ: Đảm bảo an ninh tuyệt đối cho mọi cư dân.
  • Dịch vụ bảo trì: Sẵn sàng khắc phục và đáp ứng nhu cầu kỹ thuật bất kỳ lúc nào.
Chung cư Phú Mỹ, Quận 7, TP Hồ Chí Minh

Tiến độ và Thanh toán

Chung cư Phú Mỹ, Quận 7, TP Hồ Chí Minh

Tiến độ xây dựng

Chung cư Phú Mỹ đã hoàn thành, sẵn sàng chào đón cư dân mới. Điều này đảm bảo rằng khi bạn quyết định sở hữu một căn hộ tại đây, bạn sẽ không phải chờ đợi lâu. Chung cư Phú Mỹ, Quận 7, TP Hồ Chí Minh

Phương thức thanh toán

Khách hàng có thể lựa chọn phương thức thanh toán linh hoạt như sau:
  • Đợt 1: 20% tổng giá trị hợp đồng ngay sau khi ký kết.
  • Các đợt kế tiếp sẽ được phân chia đều trong vòng 21 tháng.
Các đợt thanh toán này được thiết kế để giúp giảm gánh nặng tài chính cho khách hàng và đồng thời cam kết tiến độ xây dựng. Chung cư Phú Mỹ, Quận 7, TP Hồ Chí Minh

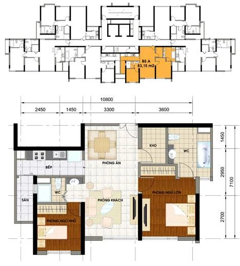
Mặt bằng tổng thể

Chung cư Phú Mỹ, Quận 7, TP Hồ Chí Minh

Hình ảnh và mô tả

Mặt bằng của chung cư Phú Mỹ được thiết kế một cách khoa học, hợp lý, tạo nhiều khoảng trống tự nhiên cho cư dân. Hình ảnh các căn hộ cũng mang đến cảm giác thoáng đãng và gần gũi hơn với thiên nhiên.
  • Căn hộ A1a, A1b và A2, A3: Đặc trưng bởi thiết kế hiện đại, phù hợp với nhu cầu sống của gia đình trẻ.
  • Căn hộ A4a, A4b: Không gian rộng rãi, thích hợp cho những gia đình có nhiều thành viên.
  • Căn hộ B5a, B5b và B6a, B6b: Cảnh quan view hướng đẹp, giúp cư dân tận hưởng không gian sống tuyệt vời.
Chung cư Phú Mỹ, Quận 7, TP Hồ Chí Minh

Kết luận

Chung cư Phú Mỹ không chỉ đơn thuần là một nơi ở mà còn là một không gian sống lý tưởng, nơi hội tụ đầy đủ các yếu tố về nghệ thuật thiết kế, tiện ích và an ninh. Với sự đầu tư bài bản từ Công ty Vạn Phát Hưng và dịch vụ chăm sóc tận tâm từ Kim Cương Xanh, đây chính là một lựa chọn hoàn hảo cho những ai đang tìm kiếm một cuộc sống chất lượng tại quận 7, TP Hồ Chí Minh. Cho dù bạn là gia đình trẻ, chuyên gia hay người nội trợ, Chung cư Phú Mỹ chắc chắc sẽ mang lại cho bạn một cuộc sống an cư lạc nghiệp viên mãn.
0 Thích
Chia sẻ
  • Chia sẻ Facebook
  • Chia sẻ Twitter
  • Chia sẻ Zalo
  • Chia sẻ Pinterest
Đọc nhiều
Khám phá bức tranh hoa Anh Đào trong thế giới anime tuyệt vời
Mèo ta lai Anh – Nguồn gốc, và giá bán chi tiết 2023
Khám giá một số ưu nhược điểm xe Xpander 2024 sau khi lái 1001km
Khám Phá Ý Nghĩa Bài Hát Vì Anh Đâu Có Biết
Scandan Ảnh Nóng Chung Hân Đồng Nude Cùng Trần Quán Hy
 Bài viết liên quan
Tải Capcut miễn phí để tạo video chuyên nghiệp HI TECH
Tải Capcut miễn phí để tạo video chuyên nghiệp

Giới thiệu về công cụ chỉnh sửa video miễn phí Trong thời đại số hóa hiện nay, việc sáng tạo các...

Tải ứng dụng từ Google Play Store nhanh chóng và dễ dàng HI TECH
Tải ứng dụng từ Google Play Store nhanh chóng và dễ dàng

Ngày nay, smartphone đã trở thành một phần không thể thiếu trong cuộc sống hàng ngày của chúng ta. Với...

Cách tải FIFA nhanh chóng và dễ dàng cho game thủ HI TECH
Cách tải FIFA nhanh chóng và dễ dàng cho game thủ

Giới thiệu về trò chơi bóng đá hấp dẫn Trò chơi bóng đá không còn xa lạ với chúng ta, đặc...

Hướng dẫn tải video trên web hiệu quả và nhanh chóng HI TECH
Hướng dẫn tải video trên web hiệu quả và nhanh chóng

Tại Sao Cần Tải Video Từ Internet? Trong thời đại công nghệ số hiện nay, video trở thành một phần không...

Hướng dẫn tải Zoom cho MacBook dễ dàng và nhanh chóng HI TECH
Hướng dẫn tải Zoom cho MacBook dễ dàng và nhanh chóng

Cách Tải Phần Mềm Họp Trực Tuyến Cho MacBook Trong thời đại số ngày nay, việc kết nối với nhau qua...

Tải lịch vạn niên để tra cứu ngày tháng dễ dàng HI TECH
Tải lịch vạn niên để tra cứu ngày tháng dễ dàng

Giới thiệu về tiện ích tra cứu lịch và tầm quan trọng của việc nắm bắt thông tin lịch âm...

Tải mẫu powerpoint đẹp miễn phí cho thuyết trình ấn tượng HI TECH
Tải mẫu powerpoint đẹp miễn phí cho thuyết trình ấn tượng

Mở đầu Trong thời đại số hiện nay, việc tạo ra những bài thuyết trình ấn tượng và chuyên nghiệp trở...

Hướng dẫn tải play và khám phá ứng dụng Android HI TECH
Hướng dẫn tải play và khám phá ứng dụng Android

Giới thiệu về cửa hàng ứng dụng Android Trong thời đại công nghệ 4.0 hiện nay, việc sở hữu một chiếc...

Tải Lightshot Ứng Dụng Chụp Ảnh Màn Hình Miễn Phí HI TECH
Tải Lightshot Ứng Dụng Chụp Ảnh Màn Hình Miễn Phí

Tổng Quan Về Ứng Dụng Chụp Ảnh Màn Hình Trong thời đại công nghệ số ngày nay, việc chia sẻ thông...

Tầm quan trọng của skin trong Minecraft và cách tải skin HI TECH
Tầm quan trọng của skin trong Minecraft và cách tải skin

Minecraft không chỉ nổi tiếng với cách chơi sáng tạo mà còn vì khả năng tùy biến nhân vật của...

Tin mới
Tải Capcut miễn phí để tạo video chuyên nghiệp

Tải Capcut miễn phí để tạo video chuyên nghiệp

Giới thiệu về công cụ chỉnh sửa video miễn phí Trong thời đại số hóa hiện nay, việc sáng tạo các nội dung video chất lượng cao đã trở thành một xu hướng phổ biến. Với sự phát triển của mạng...

20:45 08/04/2025 HI TECH

Tải ứng dụng từ Google Play Store nhanh chóng và dễ dàng

Tải ứng dụng từ Google Play Store nhanh chóng và dễ dàng

Ngày nay, smartphone đã trở thành một phần không thể thiếu trong cuộc sống hàng ngày của chúng ta. Với hàng triệu ứng dụng khác nhau dành cho cả hệ điều hành Android và iOS, người dùng có thể dễ...

20:30 08/04/2025 HI TECH

Cách tải FIFA nhanh chóng và dễ dàng cho game thủ

Cách tải FIFA nhanh chóng và dễ dàng cho game thủ

Giới thiệu về trò chơi bóng đá hấp dẫn Trò chơi bóng đá không còn xa lạ với chúng ta, đặc biệt là những người yêu thích thể thao. Trong số các trò chơi thể thao nổi tiếng, một trong những...

20:16 08/04/2025 HI TECH

Hướng dẫn tải video trên web hiệu quả và nhanh chóng

Hướng dẫn tải video trên web hiệu quả và nhanh chóng

Tại Sao Cần Tải Video Từ Internet? Trong thời đại công nghệ số hiện nay, video trở thành một phần không thể thiếu trong cuộc sống hàng ngày của chúng ta. Từ việc giải trí, học tập đến làm việc, video...

20:00 08/04/2025 HI TECH

Hướng dẫn tải Zoom cho MacBook dễ dàng và nhanh chóng

Hướng dẫn tải Zoom cho MacBook dễ dàng và nhanh chóng

Cách Tải Phần Mềm Họp Trực Tuyến Cho MacBook Trong thời đại số ngày nay, việc kết nối với nhau qua các ứng dụng họp trực tuyến là vô cùng quan trọng, đặc biệt là trong bối cảnh làm việc từ...

19:45 08/04/2025 HI TECH

Tải lịch vạn niên để tra cứu ngày tháng dễ dàng

Tải lịch vạn niên để tra cứu ngày tháng dễ dàng

Giới thiệu về tiện ích tra cứu lịch và tầm quan trọng của việc nắm bắt thông tin lịch âm dương Trong cuộc sống hiện đại ngày nay, việc tra cứu lịch không chỉ đơn thuần là xem ngày tháng mà...

19:30 08/04/2025 HI TECH

Tải mẫu powerpoint đẹp miễn phí cho thuyết trình ấn tượng

Tải mẫu powerpoint đẹp miễn phí cho thuyết trình ấn tượng

Mở đầu Trong thời đại số hiện nay, việc tạo ra những bài thuyết trình ấn tượng và chuyên nghiệp trở thành một yếu tố quan trọng giúp bạn thu hút sự chú ý của khán giả. Dù bạn là một...

19:15 08/04/2025 HI TECH

Hướng dẫn tải play và khám phá ứng dụng Android

Hướng dẫn tải play và khám phá ứng dụng Android

Giới thiệu về cửa hàng ứng dụng Android Trong thời đại công nghệ 4.0 hiện nay, việc sở hữu một chiếc điện thoại thông minh đã trở thành một phần không thể thiếu trong cuộc sống hàng ngày. Đặc biệt, hệ...

19:00 08/04/2025 HI TECH

Tải Lightshot Ứng Dụng Chụp Ảnh Màn Hình Miễn Phí

Tải Lightshot Ứng Dụng Chụp Ảnh Màn Hình Miễn Phí

Tổng Quan Về Ứng Dụng Chụp Ảnh Màn Hình Trong thời đại công nghệ số ngày nay, việc chia sẻ thông tin qua hình ảnh trở nên quan trọng hơn bao giờ hết. Một trong những công cụ hữu ích giúp...

18:45 08/04/2025 HI TECH

Tầm quan trọng của skin trong Minecraft và cách tải skin

Tầm quan trọng của skin trong Minecraft và cách tải skin

Minecraft không chỉ nổi tiếng với cách chơi sáng tạo mà còn vì khả năng tùy biến nhân vật của người chơi. Với một kho tàng skin phong phú, bạn có thể thể hiện cá tính của mình trong thế...

18:30 08/04/2025 HI TECH

FT trong bóng đá là gì? Ý nghĩa và tầm quan trọng của FT

  • Điều khoản sử dụng
  • Chính sách bảo mật
  • Cookies
  • RSS
  • Giới thiệu
  • Điều khoản sử dụng
  • Chính sách bảo mật
  • RSS

© 2026 - marcom.edu.vn
Liên Kết Hữu Ích :

Trang thông tin tổng hợp
  • Trang chủ
  • HOME
  • HI TECH
  • Ăn
  • Đời Sống Và Văn Hóa
  • Điểm Hẹn
  • EVA
  • Tử Vi
  • Ảnh
  • XE++
Đăng ký / Đăng nhập
Quên mật khẩu?
Chưa có tài khoản? Đăng ký